Appartamento in bifamiliare con garage e giardino
Prezzo:
€
€208.000
Descrizione
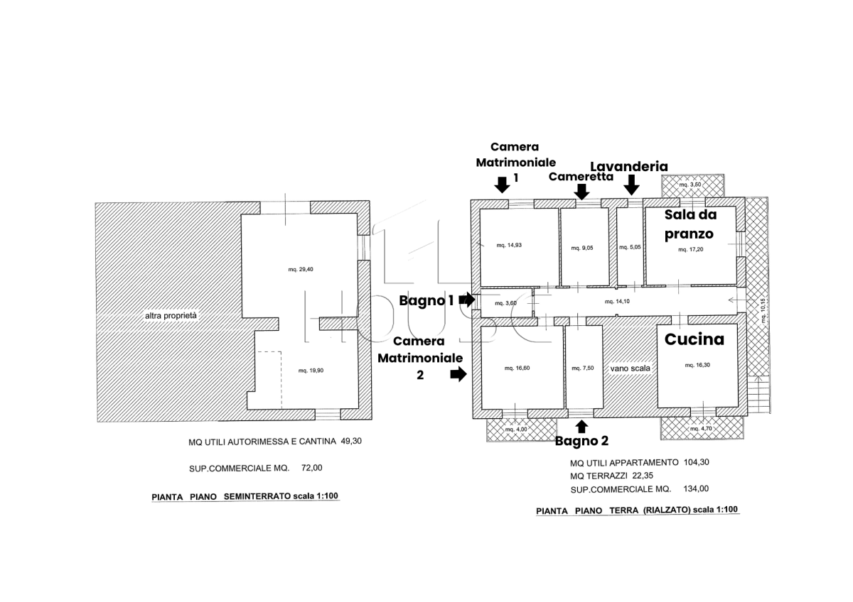
In posizione centrale e luminosa a Santa Fiora, proponiamo in vendita esclusiva un appartamento in bifamiliare posto a piano rialzato, della superficie di circa 110 mq.
L’immobile è composto da:
- ingresso su ampio corridoio
- soggiorno luminoso con doppia esposizione e terrazzo
- cucina abitabile anch’essa con terrazzino
- ripostiglio/lavanderia
- ampio bagno
- due grandi camere matrimoniali di cui una con terrazzino
- camera singola
- bagno di servizio
A completare la proprietà sono presenti una rata di giardino/orto di 100 mq ed un ampio garage di circa 50 mq posto a piano seminterrato.
L’immobile si presenta in ottime condizioni ed è la soluzione ideale per chi desidera indipendenza all’interno di un contesto curato, ordinato e ben mantenuto.
Caratteristiche della proprietà
Dettagli della proprietà
Dimensioni:
110 m2
Arredamento:
Non arredato
Camere:
3
Bagni:
2
Anno di costruzione:
1980
Caratteristiche interne
Riscaldamento:
Autonomo Radiatori Metano
Aria Condizionata:
Assente
Tv:
Privato
Ascensore:
No
Caratteriste Esterne
Parcheggio:
Sì 2 box 50mq
Giardino privato:
Sì 100mq
Accesso disabili:
Sì
Disponibile sui portali:
400844

