Casa singola al grezzo avanzato con giardino
Prezzo:
€
€350.000
Descrizione
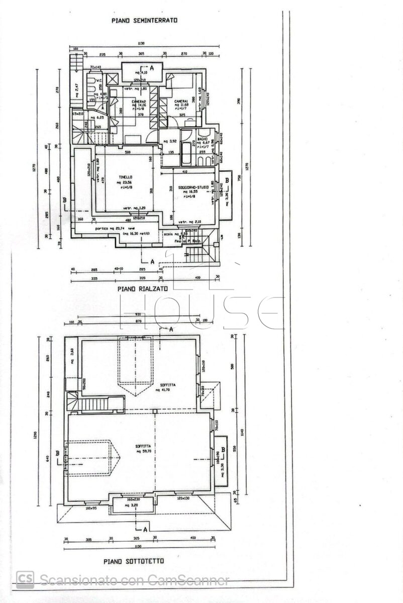
Nell’immediata periferia di Sansepolcro, in posizione comoda e vicina ai servizi, proponiamo in vendita casa singola al grezzo avanzato di circa 300 mq, ideale per chi desidera personalizzare gli spazi o realizzare due unità abitative indipendenti.
Distribuzione degli spazi:
- Piano terra: garage di circa 91 mq, ampio e funzionale.
- Piano primo: appartamento di circa 90 mq con predisposizione scarichi cucina e due bagni, oltre a portico panoramico di circa 20 mq.
- Piano secondo: soffitta abitabile di circa 92 mq, con predisposizione scarichi cucina e due bagni, perfetta per una seconda unità.
Caratteristiche costruttive:
- Struttura in cemento armato e Poroton
- Facciate in pietra a vista
- Predisposizione corrugati (forassiti) per impianti elettrici
- Fosse biologiche nuove
- Pozzo per irrigazione del giardino
- Giardino privato di circa 500 mq
Possibilità di realizzare due appartamenti con ingresso indipendente, ciascuno composto da cucina, soggiorno, due camere matrimoniali e due bagni.
Soluzione ideale per famiglie, investitori o per chi cerca una villa personalizzabile in posizione strategica, a pochi minuti dal centro.
Caratteristiche della proprietà
Dettagli della proprietà
Dimensioni:
300 m2
Arredamento:
Non arredato
Camere:
6
Bagni:
4
Anno di costruzione:
2005
Piani:
1
Caratteristiche interne
Riscaldamento:
Autonomo Radiatori Metano
Aria Condizionata:
Assente
Tv:
Privato
Ascensore:
No
Caratteriste Esterne
Parcheggio:
Sì 2 box 91mq
Giardino privato:
Sì 500mq
Accesso disabili:
No
Disponibile sui portali:
222255


