Casolare con giardino di 180mq
Prezzo:
Descrizione
Nella località di Ponte alla Piera, a pochi km da Anghiari, proponiamo in vendita un casolare con ingresso indipendente, circondato da un ampio giardino con terreno annesso.
L’immobile è stato ristrutturato dal punto di vista antisismico, conservando comunque le caratteristiche architettoniche tradizionali tipiche del luogo.
Attualmente necessita di lavori di finitura e della realizzazione degli impianti, offrendo la possibilità di personalizzare gli spazi secondo le proprie esigenze.
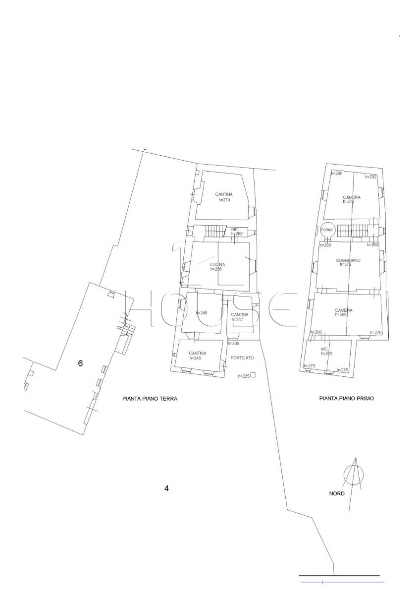
La proprietà si sviluppa su due piani fuori terra per circa 180 mq netti complessivi e si presta sia come abitazione unifamiliare sia come soluzione suddivisibile in due unità abitative.
Poco discosto, ma sempre all’interno della proprietà esclusiva, è presente un ulteriore fabbricato indipendente su due livelli di circa 80 mq, completamente da ristrutturare, ideale come dependance, seconda abitazione o struttura accessoria.
Completa la proprietà un giardino privato di circa 6.000 mq, perfetto per chi cerca spazio, riservatezza e un contesto autentico, senza rinunciare all’indipendenza.


