Casolare panoramico con annessi e terreno
Prezzo:
Descrizione
Immerso nelle verdi colline umbre, proponiamo in vendita un ampio casolare, di circa 300 mq, situato in posizione panoramica in Vocabolo Passerina.
L’immobile, caratterizzato da ampi spazi e viste suggestive, si sviluppa su tre livelli.
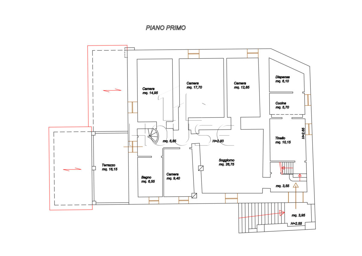
Il piano primo, accessibile tramite una scala esterna con loggiato, ospita la zona giorno con un grande soggiorno dotato di camino, tinello, cucina e dispensa. La zona notte comprende quattro camere da letto e un bagno finestrato con vasca. A completare il piano un ampio terrazzo panoramico con affaccio sulle colline circostanti.
Il piano secondo è composto da quattro spaziosi locali sottotetto finestrati con possibilità di recuperarli.
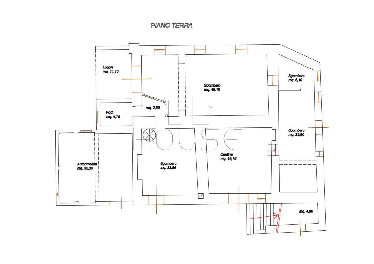
Al piano terra sono presenti ampi spazi accessori, tra cui garage, cantine, fondi e un bagno. Anche a questo piano vi è la possibilità di recuperare gli spazi per un ulteriore abitazione.
La proprietà include inoltre un essiccatoio di circa 150 mq ed un annesso anche questo di circa 150 mq con possibilità di spostamento della cubatura per la realizzazione di unità abitativa con ampio terreno circostante, ideale per chi cerca tranquillità e spazio con la natura.



