Rustico con tre appartamenti e piscina

Prezzo:
€120.000

Descrizione

In località Montelabreve, nel comune di Badia Tedalda a circa 10 km dal centro, proponiamo in vendita rustico di circa 270 mq complessivi, suddiviso in tre appartamenti indipendenti, ideale come soluzione plurifamiliare o per attività ricettiva.


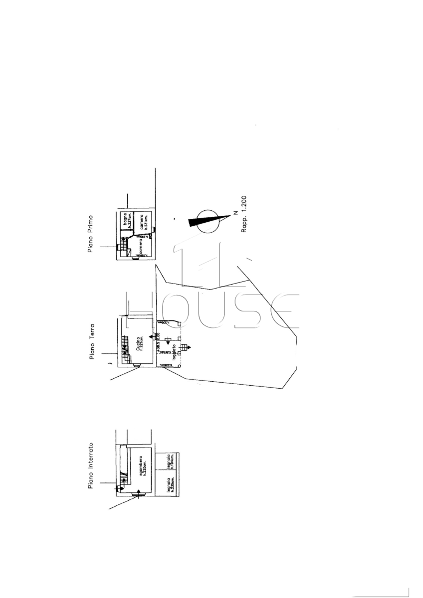
  • Primo appartamento: cantine a piano seminterrato; abitazione composta da soggiorno, cucina, tre camere e bagno.

  • Secondo appartamento: soggiorno-cucina a piano terra; una camera a piano primo; camera e bagno a piano secondo.

  • Terzo appartamento: ingresso su soggiorno, due camere, bagno e loggiato, spazio esterno coperto di grande fascino.

Completano la proprietà ulteriori cantine, cortile con area parcheggio e terreno esclusivo di circa 250 mq con piscina, elemento di grande valore per l’uso turistico o il relax.

L’immobile è abitabile, ma necessita di interventi di revisione e miglioramento di alcuni aspetti. L’accesso avviene tramite strada sterrata attualmente in condizioni non ottimali, aspetto da tenere in considerazione.

Soluzione interessante per chi cerca un contesto rustico autentico, immerso nella quiete, con potenziale di valorizzazione sia residenziale che ricettivo.



Caratteristiche della proprietà

Dettagli della proprietà
Dimensioni: 270 m2
Arredamento: Non arredato
Camere: 7
Bagni: 3
Caratteristiche interne
Riscaldamento: Autonomo Pavimento Metano
Aria Condizionata: Assente
Tv: Privato
Ascensore: No
Caratteriste Esterne
Parcheggio: Sì scoperto
Giardino privato: Sì 250mq
Accesso disabili: No
Disponibile sui portali: 246059

Video immobile

Planimetrie

Prezzo:
€120.000

Alessandro Dini

Via Malatesta 52 - Sansepolcro
Telefono fisso: 0575049190
Telefono mobile: 3356856078
Whatsapp: 3444618174
Guarda i miei immobili

VUOI RICEVERE MAGGIORI INFORMAZIONI? CONTATTACI SUBITO

Richiesta Info Immobile