Villa Nuova Costruzione
Riferimento:
4144
209
Prezzo:
€
Info in agenzia
Descrizione
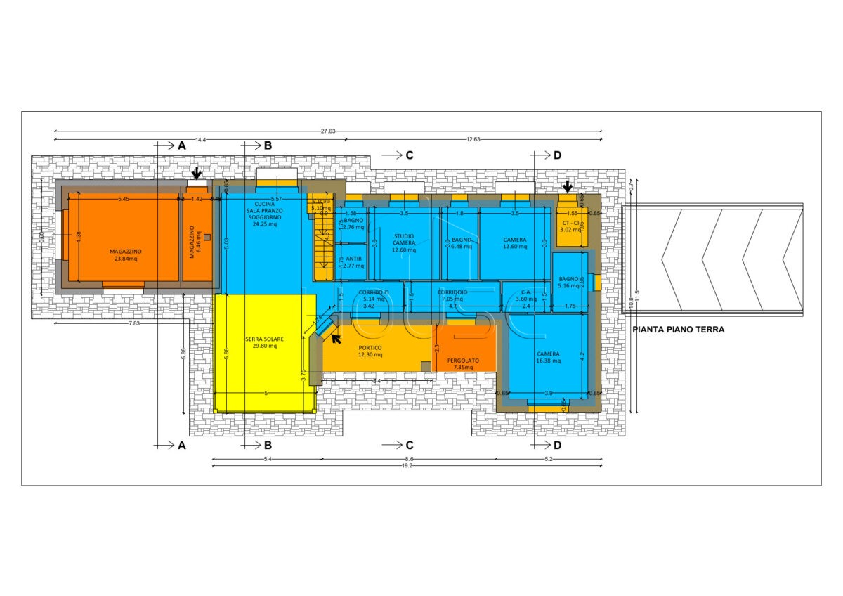
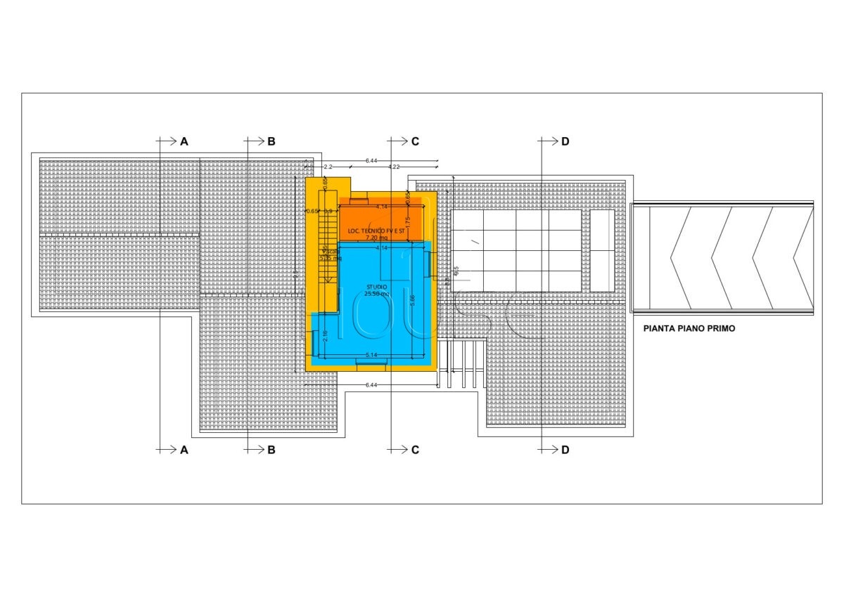
In posizione panoramica, a pochi km dal centro, Villa singola di Nuova Costruzione, di 180 mq ca., composta da: soggiorno con cucina a vista con affaccio su serra solare, 3 camere da letto matrimoniali e doppi servizi a piano terra; altra camera matrimoniale/studio al piano primo.
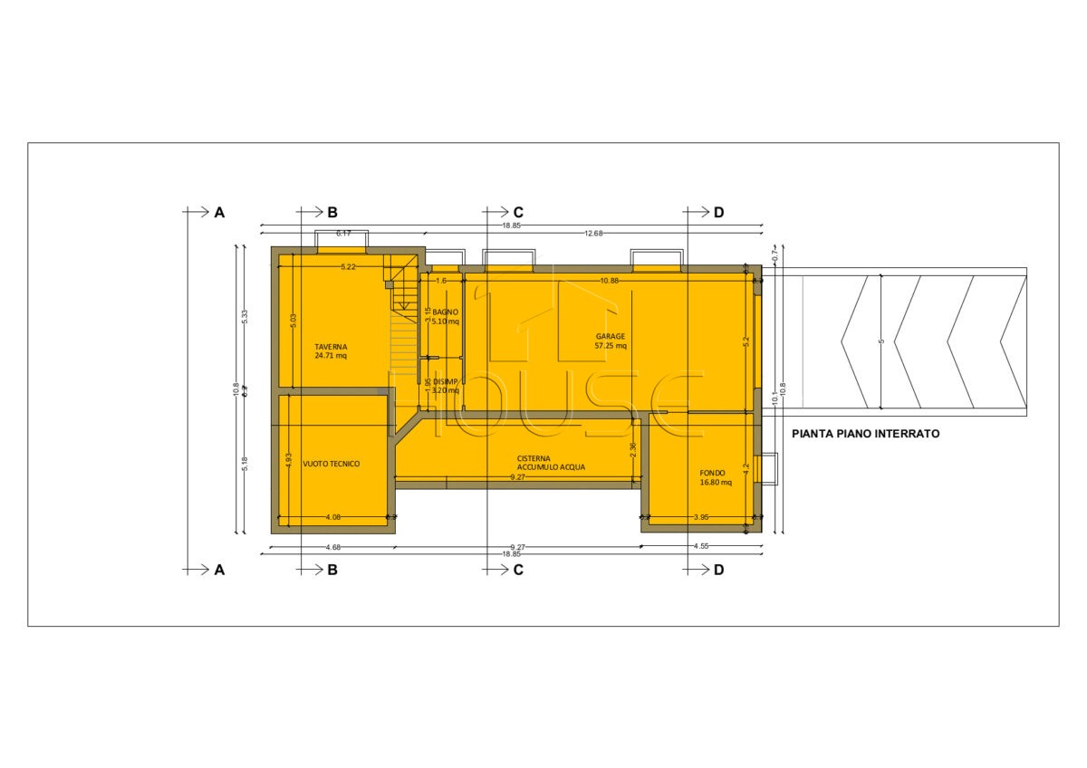
Oltre a portici e magazzino a piano terra; ampia taverna con bagno, fondo e garage al piano seminterrato.
Ampio terreno circostante.
Caratteristiche della proprietà
Dettagli della proprietà
Dimensioni:
180 m2
Arredamento:
Non arredato
Camere:
4
Bagni:
3
Anno di costruzione:
2021
Caratteristiche interne
Riscaldamento:
Autonomo Pavimento Pompa di calore
Aria Condizionata:
Predisposto Calda/fredda
Tv:
Privato
Caratteriste Esterne
Accesso disabili:
No
Disponibile sui portali:
100472




