Villetta a schiera di recente costruzione
Prezzo:
Descrizione
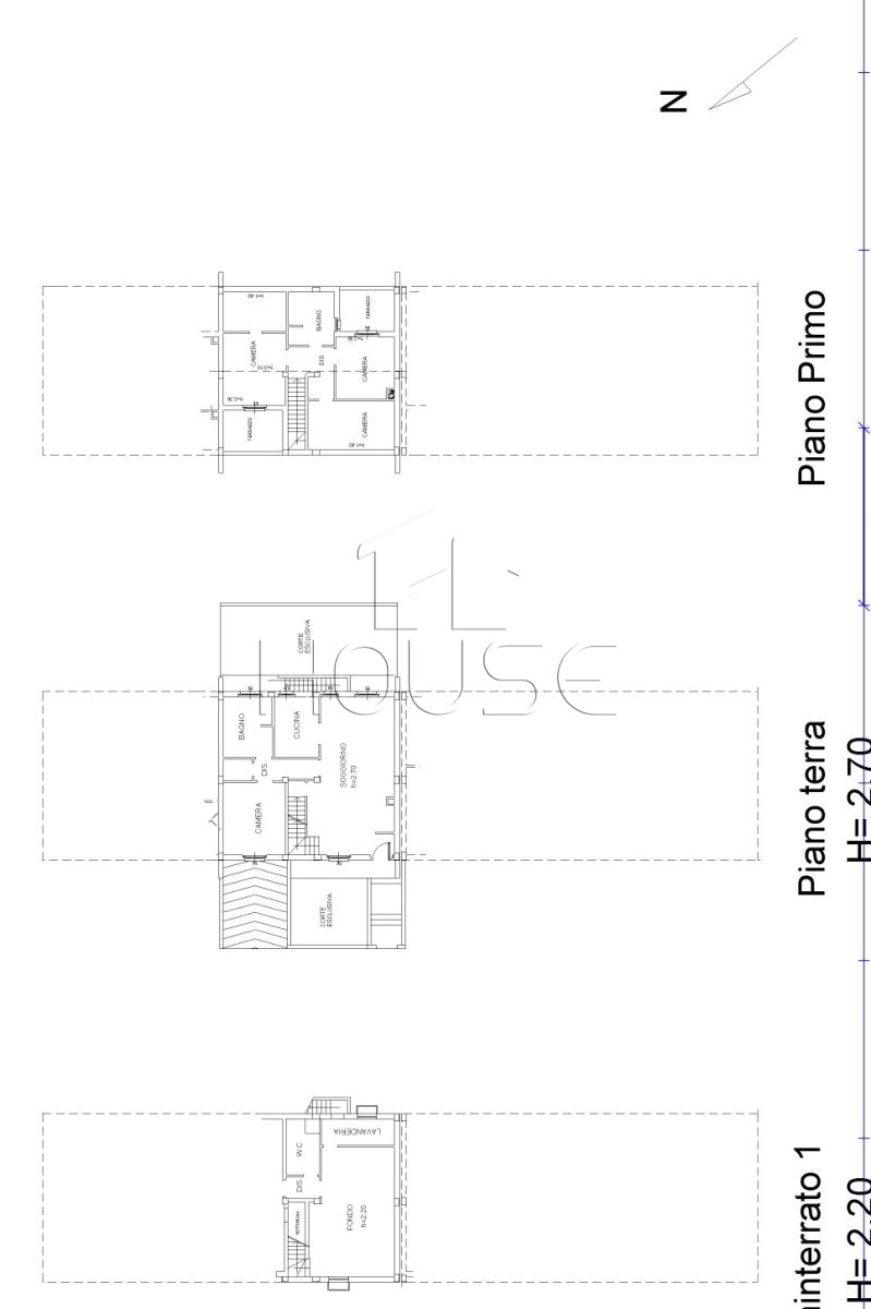
Villetta a schiera di recente costruzione di ca. 220 mq, disposta su più livelli e caratterizzata da ambienti ampi, funzionali e finiture curate.
Al piano terra si sviluppa una luminosa zona giorno, ideale per la vita quotidiana e per ricevere ospiti, affiancata da una cucina abitabile separata. Il piano ospita inoltre una camera, un comodo disimpegno, un ripostiglio e un ampio bagno, offrendo una distribuzione degli spazi estremamente pratica e versatile.
Il piano primo è dedicato alla zona notte e comprende tre camere da letto, un disimpegno, un bagno finestrato e due terrazzi, che garantiscono ottima luminosità e piacevoli affacci esterni.
Al piano seminterrato si trova una splendida taverna finemente rifinita, impreziosita da un camino, perfetta come spazio relax o conviviale. Completano il livello un disimpegno, un bagno con predisposizione per sauna e un ampio garage di circa 30 mq, comodo e facilmente accessibile.
La proprietà è completata da un giardino esclusivo di circa 180 mq, in parte coperto da tettoia, ideale per momenti all’aperto, pranzi conviviali e tempo libero in totale privacy.
Soluzione abitativa ideale per famiglie che cercano comfort, spazi ben organizzati e indipendenza, in un contesto moderno e curato.


